Екатеринбург, Втузгородок м-н, улица Мира, 47/7
Площадь
Жилая
Кухня
Отделка
Класс жилья
Комнат
Номер кв.
Этаж
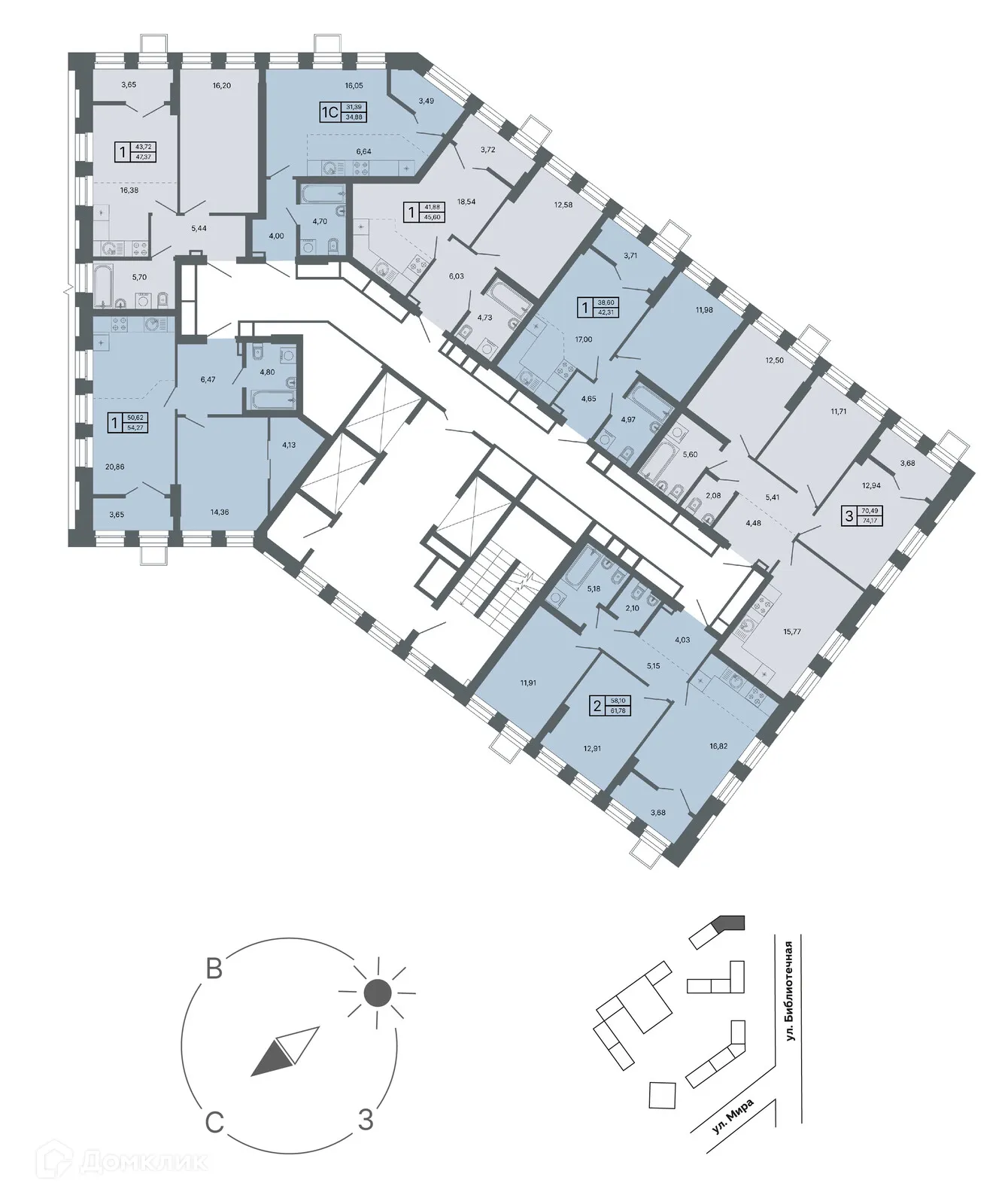
Предлагается 2-комнатная квартира в востребованном жилом комплексе "ЖК "Проспект Мира"" 🏢. Квартира расположена на 15-м этаже 27-этажного дома. Прекрасный выбор для инвестиций.
Чтобы забронировать эту квартиру бесплатно и проверить актуальную стоимость — свяжитесь с нами прямо сейчас! 📞
Флагманский проект компании «Первостроитель» — компаунд Проспект Мира, финалист премии Urban Awards, входит в ТОП 5 жилых комплексов России по версии Единого ресурса застройщика. Это обособленный и самодостаточный проект, где есть всё для полноценной комфортной жизни: передовые энергоэффективные инженерные решения, авторская архитектурная концепция, закрытый двор с фонтаном и зонами отдыха, продуманная инфраструктура. Компаунд состоит из пяти разноэтажных очередей, объединенных общим дворовым пространством. Очередь 11.2абв (ул. Мира, 47/3) представлена тремя жилыми секциями в 10 и 9 этажей с примыкающим к ним мультифункциональным центром, в котором расположены собственные бизнесы застройщика: фитнес-клуб с 24-х метровым бассейном и СПА зоной, ресторанный комплекс и отель. «Изюминкой» домов стала уникальная система приточно-вытяжной вентиляции с рекуперацией воздуха. Приборы индивидуально стоят в каждой квартире. Они не требуют внешнего проветривания и делают процесс подачи свежего воздуха полностью независимым от соседей. Особенность индивидуальной системы в том, что жители смогут выставить собственные параметры подачи воздуха в квартиру через сенсорную панель или мобильное приложение. Квартиры в домах 11.2 отличает собственная коллекция планировочных решений: от просторных однокомнатных квартир (до 56 кв.м.) до уникальных предложений со вторым светом. Большинство квартир популярного евроформата с кухней-гостиной. В квартирах выполнена качественная предчистовая отделка White box. В группу компаний «Первостроитель» входит ремонтное подразделение, которое по желанию жителей быстро и качественно выполнит как базовый, так и индивидуальный ремонт, используя проверенные трендовые материалы. В дизайне мест общего пользования застройщик придерживается принципа «рациональной роскоши»: красота без излишеств, эстетика, актуальная на долгие годы. В просторных холлах первых этажей размещена зона ожидания с креслами и журнальным столиком и колясочные. Особое внимание в проекте уделено внутреннему дворовому пространству: безопасные площадки и городки для детей всех возрастов, зона воркаута и поле для спортивных игр, удобные экологичные лежанки и скамейки для теплых соседских бесед. Центр притяжения двора – лаунж-зона с сухим фонтаном и ручьем. Во воре выполнен ландшафтный дизайн, высажены оригинальные клумбы, деревья и кустарники. В компаунде «Проспект Мира» предусмотрен двухуровневый подземный паркинг со стандартными и увеличенными местами, а также зонами для хранения велосипедов. Все крупногабаритные вещи вы сможете хранить в кладовых помещениях. Спуститься в паркинг можно непосредственно из подъездов домов. Безопасность домов обеспечивают камеры наблюдения, расположенные по периметру зданий, в местах общего пользования, на этажах и лифтах.
Срок сдачи: 1 кв. 2021 г.
Срок сдачи: 1 кв. 2021 г.
Площади квартир
Тип жилья
Этажность
Класс жилья
Корпусов
Стены