Обзор квартиры в "ЖК Лувр"
Предлагается Студия в современном жилом комплексе "ЖК Лувр" 🏢.
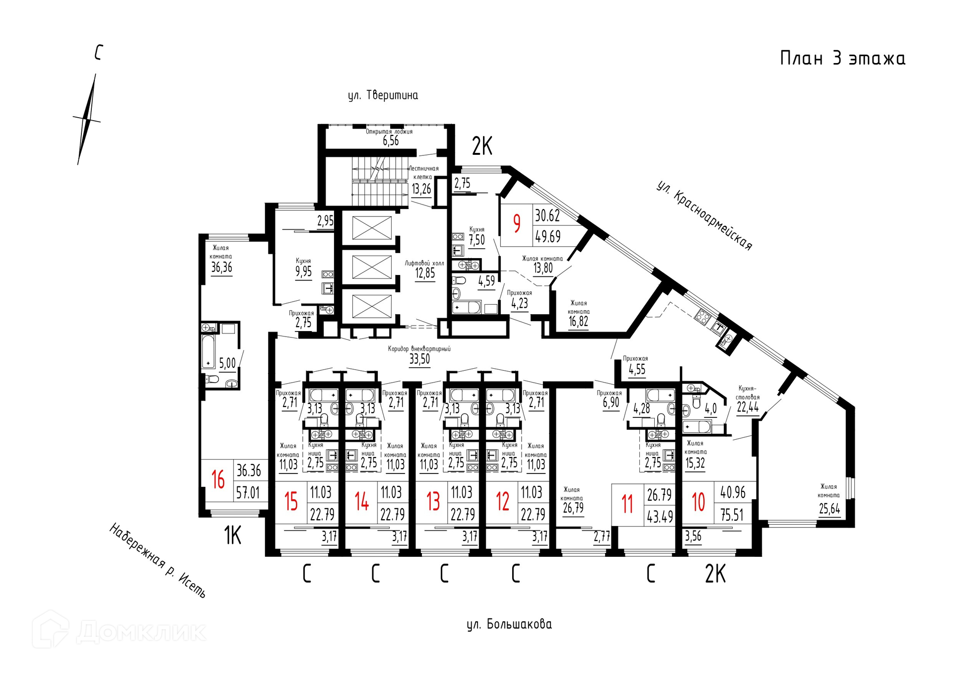
Квартира расположена на 6-м этаже 27-этажного дома.
Отличный вариант для семьи.
Продуманная планировка
- ✅ Общая площадь: 22.79 м².
- ✅ Светлая жилая площадь: - м².
- ✅ Кухня: - м² — эргономичное пространство.
Преимущества квартиры
- 🔧 Вариант отделки: предварительная отделка. Это позволит вам сразу приступить к ремонту.
- 🌞 Большие окна наполняют помещения естественным светом.
- 🌿 Класс жилья: Бизнес — современные технологии.
Выгодные условия покупки
- 💳 Ипотека от 38 561 руб/мес.
- 🏦 Подходит под семейную и IT ипотеку.
- 🤝 Эскроу-счета гарантирует спокойствие.
Чтобы забронировать эту квартиру бесплатно и проверить актуальную стоимость — свяжитесь с нами прямо сейчас! 📞
Характеристики новостройки в ЖК Лувр
- Номер квартиры: 195
- Вариант отделки: предварительная отделка
- Общая площадь: 22.79 м²
- Жилая площадь: - м²
- Площадь кухни: - м²
- Класс жилья: Бизнес
- Количество комнат: Студия
- Этаж: 6
- Этажность дома: 27
Полезная информация о ЖК Лувр