Екатеринбург, ЖБИ м-н, Малахит, жилой комплекс
Обзор квартиры в "ЖК Малахит"
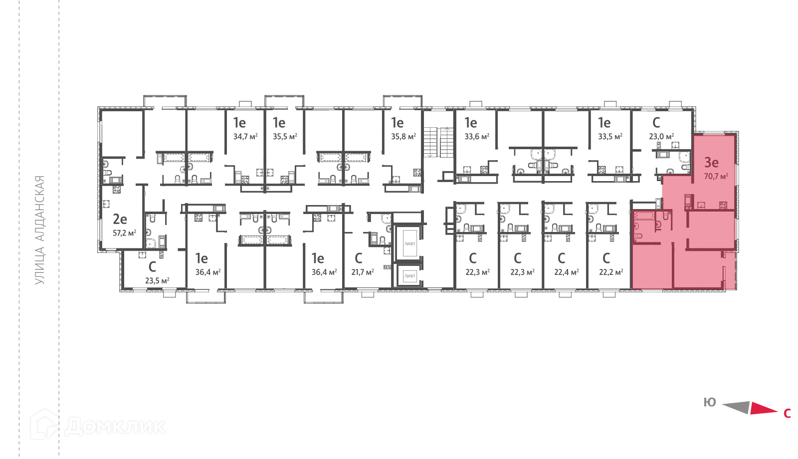
Доступна к покупке 3-комнатная квартира в востребованном жилом комплексе "ЖК Малахит" 🏢.
Квартира расположена на 5-м этаже 16-этажного дома.
Прекрасный выбор для комфортной жизни.
Функциональная планировка
- ✅ Общая площадь: 70.7 м².
- ✅ Просторная жилая площадь: 33.4 м².
- ✅ Кухня: 19.2 м² — место для кулинарных шедевров.
Преимущества квартиры
- 🔧 Вариант отделки: чистовая отделка. Минимум грязных работ.
- 🌞 Большие окна наполняют помещения природным светом.
- 🌿 Класс жилья: Эконом — благоустроенная территория.
Финансы и ипотека
- 💳 Ипотека от 71 682 руб/мес.
- 🏦 Подходит под семейную и IT ипотеку.
- 🤝 Безопасная сделка гарантирует надежность.
Чтобы узнать подробности и зафиксировать цену — позвоните нам прямо сейчас! 📞
Характеристики новостройки в ЖК Малахит
- Номер квартиры: 60
- Вариант отделки: чистовая отделка
- Общая площадь: 70.7 м²
- Жилая площадь: 33.4 м²
- Площадь кухни: 19.2 м²
- Класс жилья: Эконом
- Количество комнат: 3-комнатная квартира
- Этаж: 5
- Этажность дома: 16
Полезная информация о ЖК Малахит